| 所在地 | 〒029-0601 一関市大東町中川[ 周辺MAP ] |
|---|---|
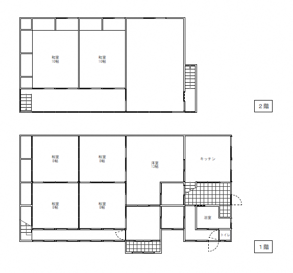
| 宅地面積 | 738.85㎡ |
| 建物構造 | 木造二階 |
| 延床面積 | 196.69㎡ |
| 建築時期 | 昭和41年 |
| 利用状況 | 空き家になって12年 |
| 価格(所有者等希望価格) | 300万円 |
| 修繕必要の有無 | 多少の修繕が必要 |
| 修繕の費用負担 | 入居者負担 |
| 設備 | 電 気:引込み済み ガ ス:プロパンガス 風 呂:灯油 水 道:山水 下水道:自然放流 トイレ:汲み取り/和式 物 置:有 |
| その他 | 田畑有(宅地だけの売買でも可) |


| 所在地 | 〒029-0601 一関市大東町中川[ 周辺MAP ] |
|---|---|
| 宅地面積 | 738.85㎡ |
| 建物構造 | 木造二階 |
| 延床面積 | 196.69㎡ |
| 建築時期 | 昭和41年 |
| 利用状況 | 空き家になって12年 |
| 価格(所有者等希望価格) | 300万円 |
| 修繕必要の有無 | 多少の修繕が必要 |
| 修繕の費用負担 | 入居者負担 |
| 設備 | 電 気:引込み済み ガ ス:プロパンガス 風 呂:灯油 水 道:山水 下水道:自然放流 トイレ:汲み取り/和式 物 置:有 |
| その他 | 田畑有(宅地だけの売買でも可) |