岩手県一関市での移住定住応援サイト「あばいん一関」
いちのせき暮らしの魅力
空き家バンク
体験ツアー・セミナー情報
住宅取得・改修時の補助制度
いちのせきファンクラブ
一関移住レポート
住宅
しごと
結婚・妊娠・出産
教育・子育て
高齢者福祉・介護予防
リンク集
アクセス
お問い合せ
物件数充実! 空き家バンク
一覧へ戻る
物件登録番号
343
売却
R6.10.4公開
一関市民利用可能
所在地
〒029-0803 一関市千厩町千厩[
周辺MAP
]
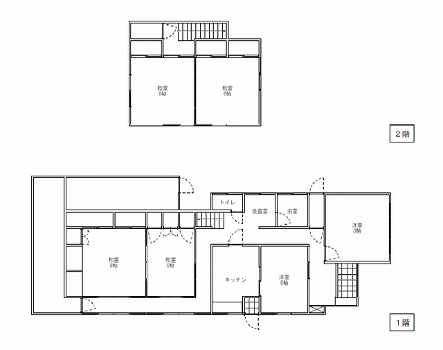
宅地面積
310.62㎡
建物構造
木造二階
延床面積
144.22㎡
建築時期
昭和49年
利用状況
空き家になって2年
価格(所有者等希望価格)
100万円
修繕必要の有無
大幅な修繕が必要
修繕の費用負担
入居者負担
設備
電 気:引込み済み
ガ ス:プロパンガス
風 呂:灯油
水 道:上水道
下水道:自然放流
トイレ:洋式/汲み取り
車 庫:有
物 置:有
CONTENTS
空き家バンクTOP
物件を利用したい方
物件を登録したい方
市内事業者一覧