岩手県一関市での移住定住応援サイト「あばいん一関」
いちのせき暮らしの魅力
空き家バンク
体験ツアー・セミナー情報
住宅取得・改修時の補助制度
いちのせきファンクラブ
一関移住レポート
住宅
しごと
結婚・妊娠・出産
教育・子育て
高齢者福祉・介護予防
リンク集
アクセス
お問い合せ
物件数充実! 空き家バンク
一覧へ戻る
物件登録番号
321
売却
R6.7.31公開
一関市民利用可能
所在地
〒029-0302 一関市東山町字東本町[
周辺MAP
]
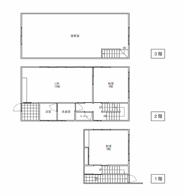
宅地面積
368.78㎡
物件種別
居宅
建物構造
木造
延床面積
119.24㎡
建築時期
昭和60年
価格(所有者等希望価格)
480万円
設備
電気:引き込み済み
ガス:プロパンガス
風呂:灯油
水道:上水道、自然排水
トイレ:汲み取り
車庫:有
物置:有
庭:有
その他
原野(274㎡)山林(275㎡)付き
CONTENTS
空き家バンクTOP
物件を利用したい方
物件を登録したい方
市内事業者一覧