| 所在地 | 一関市室根町矢越[ 周辺MAP ] |
|---|---|
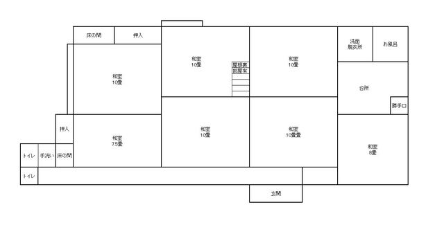
| 宅地面積 | 1,532.04㎡ |
| 物件種別 | 居宅 |
| 建物構造 | 木造平屋建て |
| 延床面積 | 114.87㎡ |
| 建築時期 | 不詳 |
| 利用状況 | 空き家になって7年 |
| 価格(所有者等希望価格) | 300万円 |
| 付帯物件 | 物置、作業場 |
| 修繕必要の有無 | 多少の修繕が必要 |
| 修繕の費用負担 | 入居者負担 |
| 設備 | 電気:引き込み済み ガス:プロパンガス 風呂:灯油兼薪 水道:井戸水 トイレ:汲み取り/洋式 |
| その他 | 農地山林一括売却希望 |


| 所在地 | 一関市室根町矢越[ 周辺MAP ] |
|---|---|
| 宅地面積 | 1,532.04㎡ |
| 物件種別 | 居宅 |
| 建物構造 | 木造平屋建て |
| 延床面積 | 114.87㎡ |
| 建築時期 | 不詳 |
| 利用状況 | 空き家になって7年 |
| 価格(所有者等希望価格) | 300万円 |
| 付帯物件 | 物置、作業場 |
| 修繕必要の有無 | 多少の修繕が必要 |
| 修繕の費用負担 | 入居者負担 |
| 設備 | 電気:引き込み済み ガス:プロパンガス 風呂:灯油兼薪 水道:井戸水 トイレ:汲み取り/洋式 |
| その他 | 農地山林一括売却希望 |