| 所在地 | 一関市山目[ 周辺MAP ] |
|---|---|
| 宅地面積 | 449.29㎡ |
| 物件種別 | 居宅 |
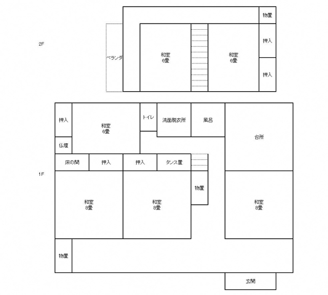
| 建物構造 | 木造二階建て |
| 延床面積 | 1F118.20㎡ 2F37.13㎡ |
| 建築時期 | 1980年建築 |
| 利用状況 | 空き家になって10年以上 |
| 価格(所有者等希望価格) | 1,200万円 |
| 付帯物件 | 物置 |
| 修繕必要の有無 | 多少の補修必要 |
| 修繕の費用負担 | 入居者負担 |
| 設備 | 電気:引き込み済み ガス:プロパンガス 風呂:ガス 水道:上水道 トイレ:汲み取り |
| その他 | 駐車スペース1台 |


| 所在地 | 一関市山目[ 周辺MAP ] |
|---|---|
| 宅地面積 | 449.29㎡ |
| 物件種別 | 居宅 |
| 建物構造 | 木造二階建て |
| 延床面積 | 1F118.20㎡ 2F37.13㎡ |
| 建築時期 | 1980年建築 |
| 利用状況 | 空き家になって10年以上 |
| 価格(所有者等希望価格) | 1,200万円 |
| 付帯物件 | 物置 |
| 修繕必要の有無 | 多少の補修必要 |
| 修繕の費用負担 | 入居者負担 |
| 設備 | 電気:引き込み済み ガス:プロパンガス 風呂:ガス 水道:上水道 トイレ:汲み取り |
| その他 | 駐車スペース1台 |