物件数充実! 空き家バンク

空き家情報空き家情報

一覧へ戻る

物件登録番号
372

売却

R7.9.10公開

印刷用画面

所在地 〒029-3402 一関市藤沢町新沼[ 周辺MAP
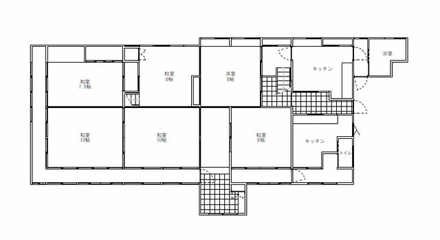
宅地面積 642㎡
物件種別 居宅
建物構造 木造銅板葺平家
延床面積 143㎡
建築時期 築80年以上
利用状況 空き家になって10年
価格(所有者等希望価格) 300万円
付帯物件 物置有
修繕必要の有無 大幅な修繕必要(主に床)
修繕の費用負担 要相談
設備 電 気:引き込み済
ガ ス:無
風 呂:灯油
水 道:上水道
下水道:浄化槽
トイレ:簡易水洗
車 庫:なし
 庭 :有
その他 付帯物件:農地あり

一覧へ戻る

CONTENTS